Neubau "Service Wohnen am Kloster" in Werne
Bauherr:
RKM Gesellschaft für Immobilienentwicklung
und Projektmanagement mbH
Bauort:
Kurt-Schumacher-Platz in Werne
Baujahr:
2008
Architektur:
Büro Lackmann - Hesse-Droll
Kategorie:
Massivbau
Fotos:
Ing.-Büro Glahn
Beschreibung:
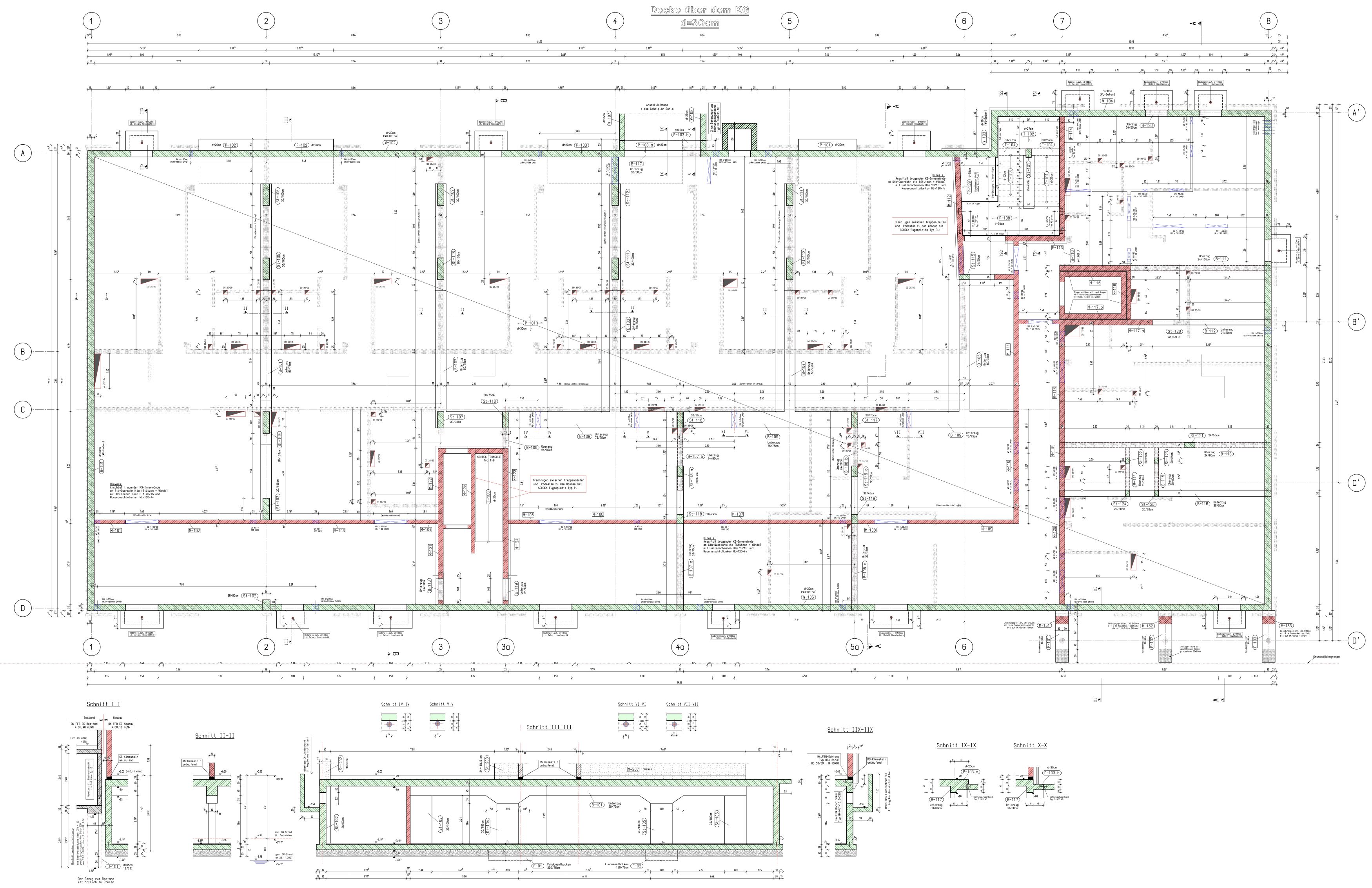
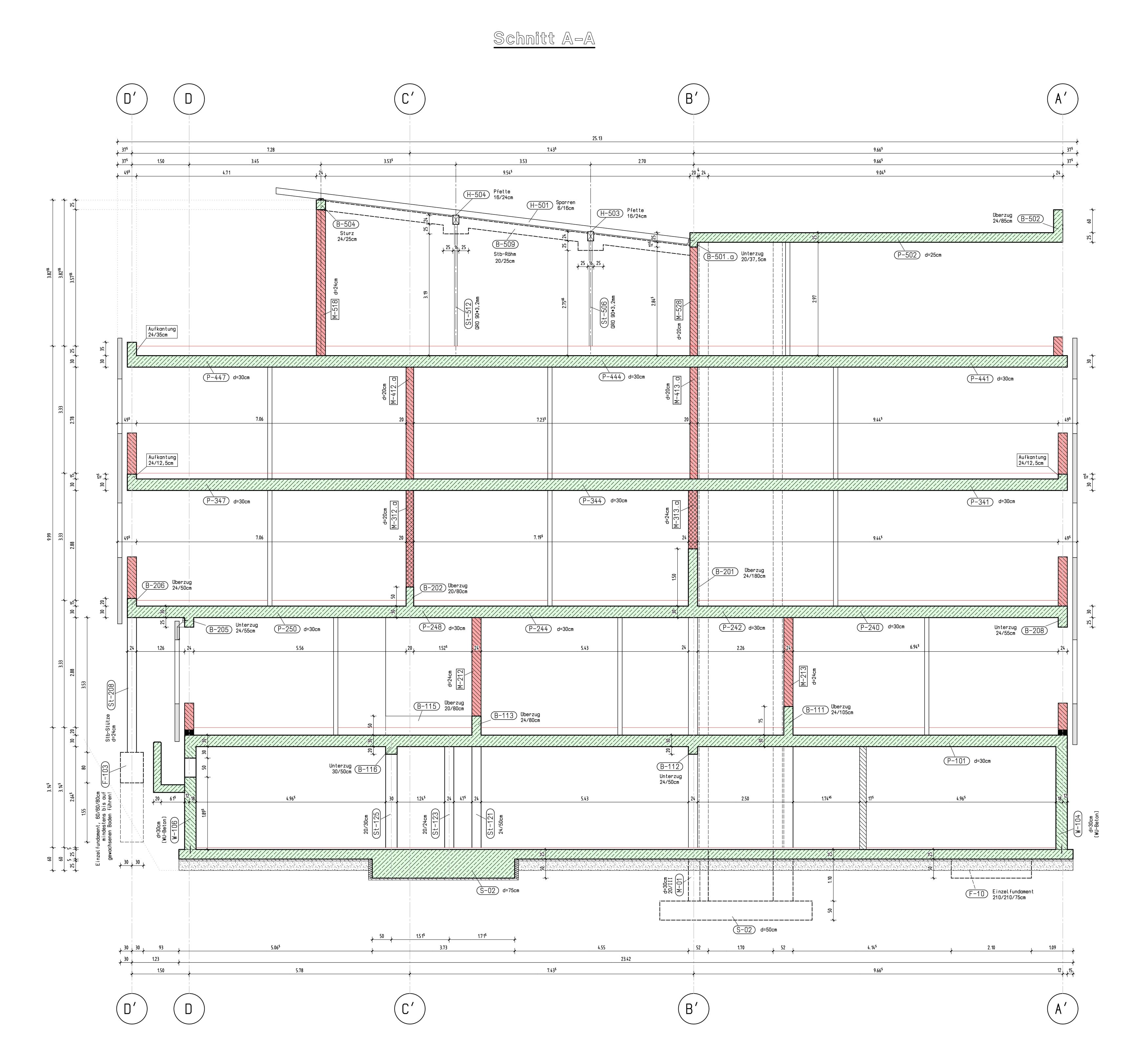
Im Zentrum von Werne entstand dieses Wohngebäude für Service-Wohnen in Massivbauweise am Kurt-Schumacher-Platz.
Als unmittelbare Grenzbebauung wurde die Gründung des benachbarten Hotelgebäudes händisch unterfangen.
Durch eine aureichend große Berme wurde abschnittsweise in geplanten Arbeitstakten nach DIN-4123 mit Pagel-Beton (Quellbeton) unterfangen.
Das Staffelgeschoss besitzt ein leicht geneigtes, beidseitiges Pultdach mit mittig liegender Kehle.
Zusammen mit den großen Fensteröffungen ergeben sich hochwertige und Lichtdurchflutete Wohnräume.
Mit den beiden Treppenhäusern und einem Aufzug sind alle Wohneinheiten bequem und barrierefrei zu erreichen.
Eine große Tiefgarage bietet genügend Platz für 28 Stellplätze und 34 Abstellräume und wird durch eine geschwungene und zur Hälfte überdachte Rampenzufahrt auf der Hofseite erschlossen.








