8-Gruppen Kita und Jungendhilfe Wiegandweg
Bauherr:
Wohn + Stadtbau Münster
Bauort:
York-Quartier Münster-Gremmendorf Wiegandweg
Baujahr:
2020
Architektur:
Wohn + Stadtbau Münster
Kategorie:
Umbau / Massivbau / Stahlbau
Fotos:
Ing.-Büro Glahn
Beschreibung:
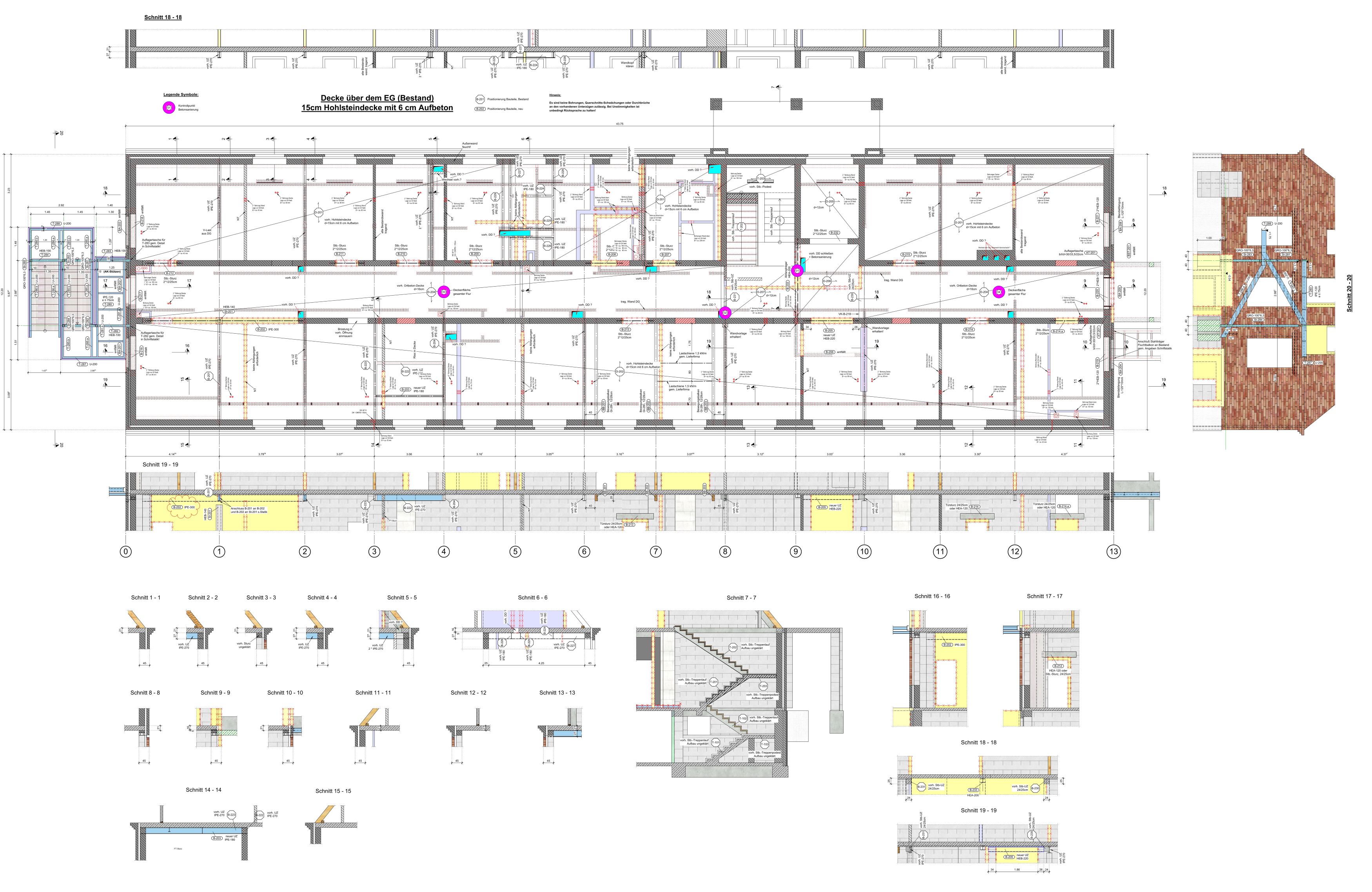
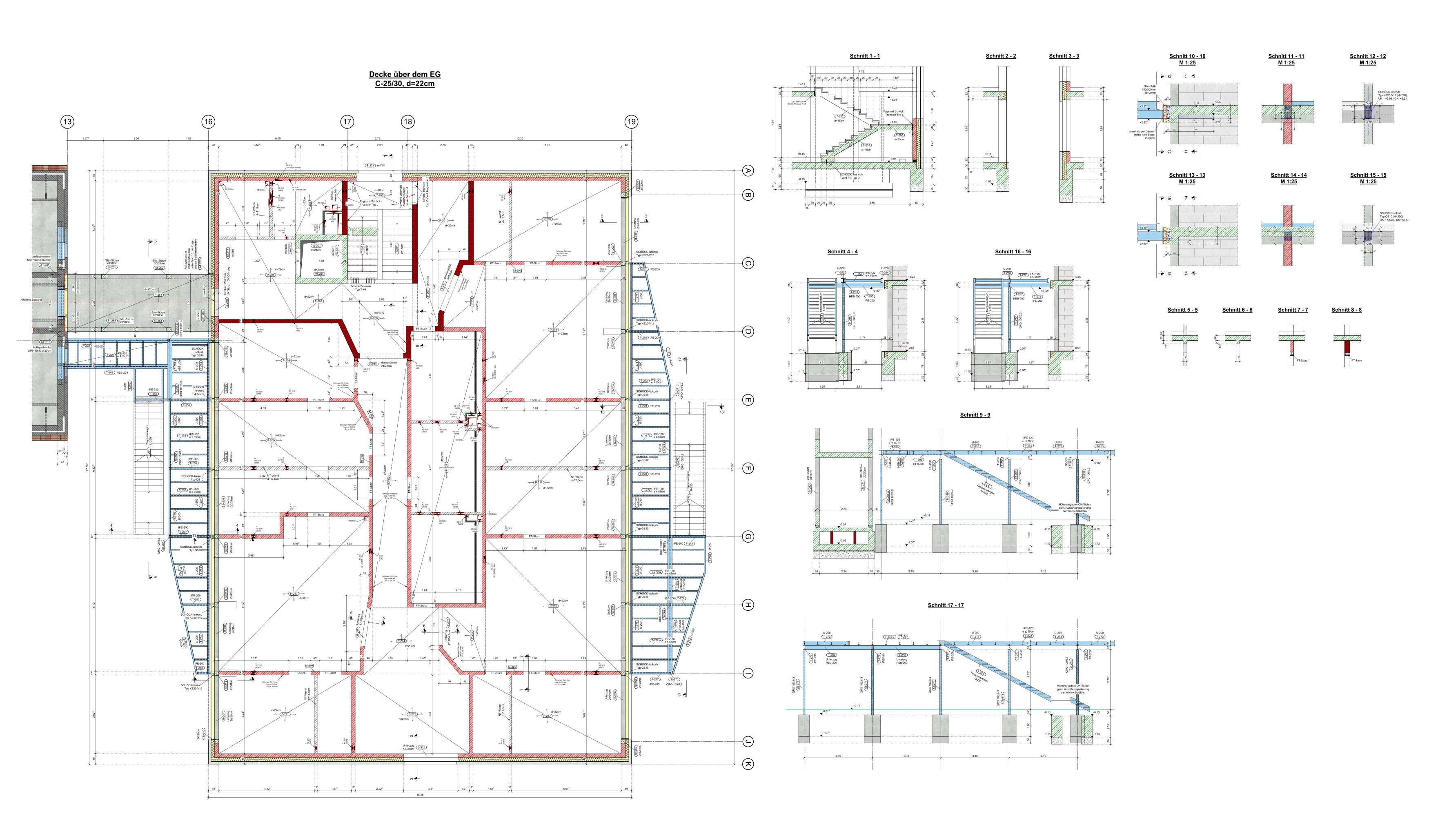
In Vorbereitung auf die geplante Bebauung des gesamten Geländes der ehemaligen York-Kasernein Münster-Gremmendorf
wurde als eine der ersten Baumaßnahmen ein ehemaliges Kasernengebäude zu einer Jungendhilfe umbgebaut
und eine moderne 8-Gruppen Kindertagesstätte in Massivbauweise angebaut.
Der neu erstellte Kita-Anbau wurde durch einen voll verglasten Verbindungstrakt mit dem Bestandsgebäude verbunden.
Insgesamt drei außen liegende Treppen- und Podestanlagen wurden in Stahlbauweise errichtet und gewährleisten
die erforderlichen Zugänge und Fluchtwege für die Obergeschosse
Die historische Kasernen-Mauer wurde für dieses Bauprojekt geöffnet um einen bespielbaren Vorplatz zu gestalten.












