Umbau und Erweiterung Kindergarten St. Johannes
Bauherr:
Kath. Pfarrgemeinde St. Johannes
Schloss Cappenberg in Selm
Bauort:
Buschkamp 13 in Selm-Cappenberg
Baujahr:
2012
Architektur:
Büro Lackmann - Hesse-Droll
Kategorie:
Holzbau / Um.- und Anbau
Fotos:
Ing.-Büro Glahn
Beschreibung:
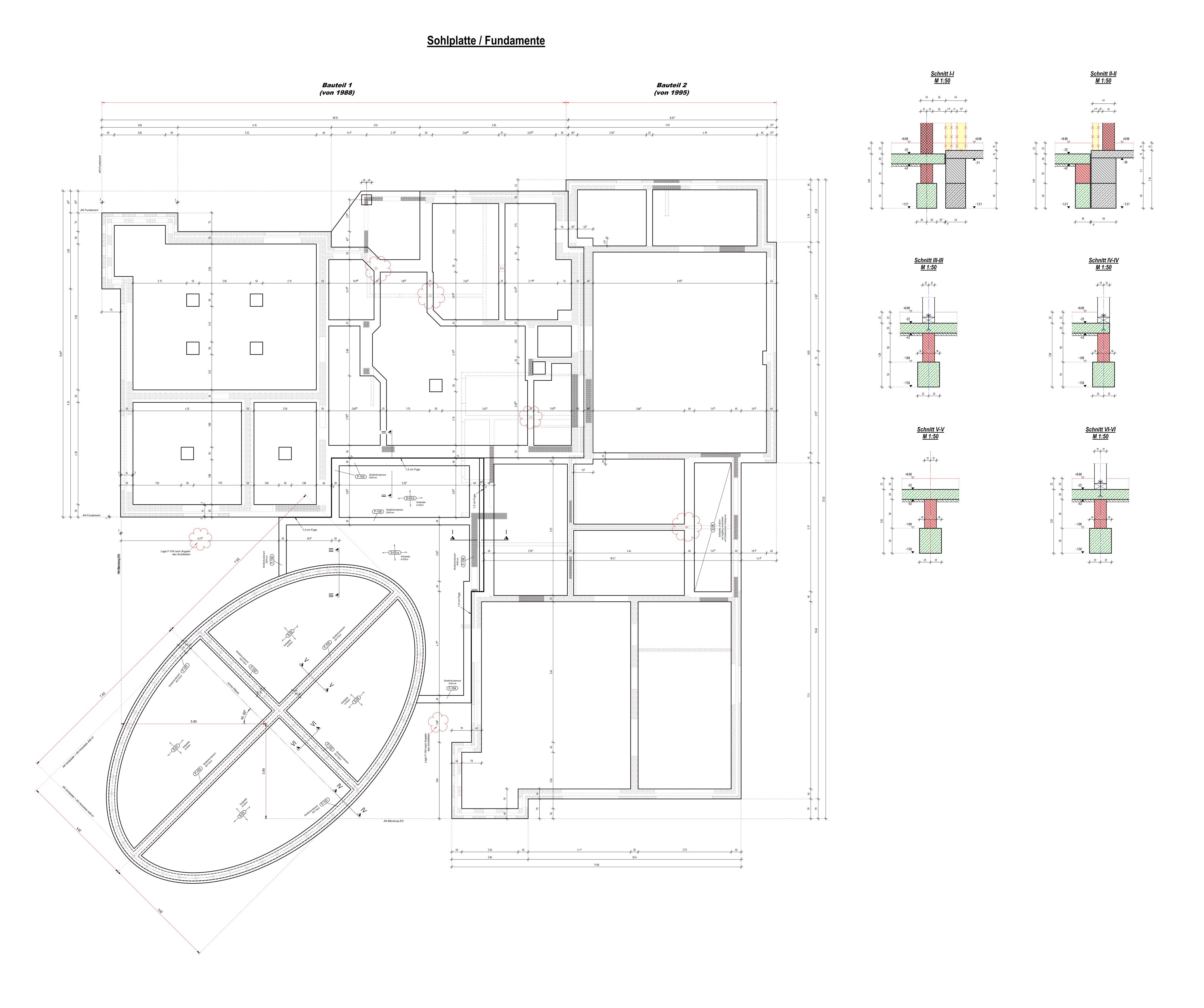
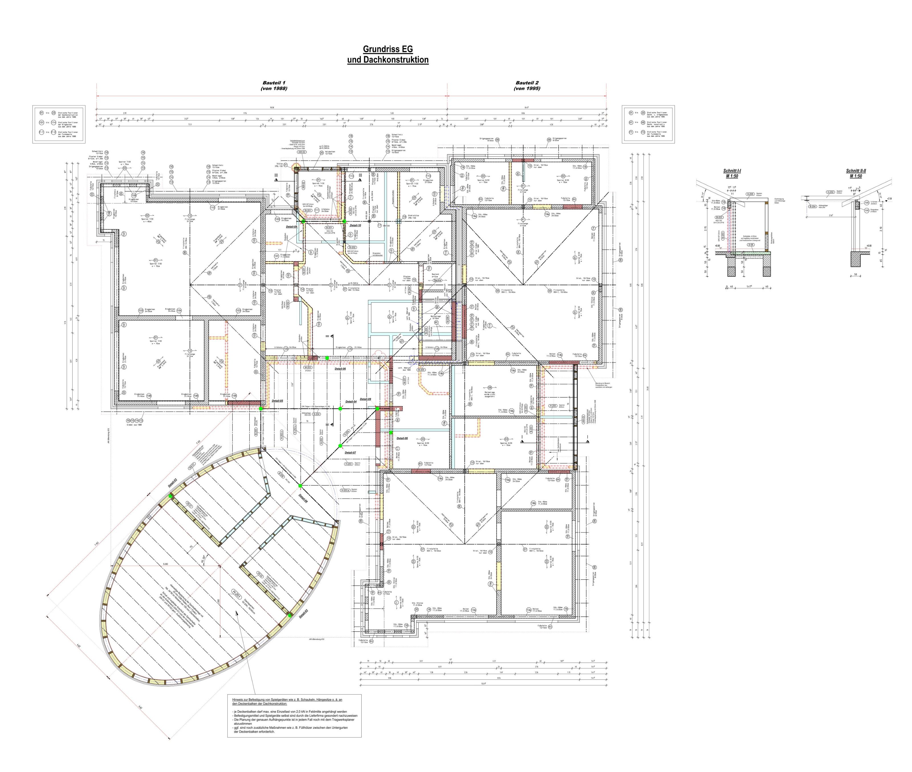
Die Erweiterung der Kindertageseinrichtung St. Johannes Evangelist in Selm Cappenberg
der Stiftskirche Schloss Cappenberg erfolgte in Holzbauweise mit elliptischem Grundriss.
Neben der Erweiterung wurde auch der Grundiss des vorhandenen Kindergartens überarbeitet
und auf die zukünftigen Anforderungen abgestimmt.
Der Übergangsbereich zwischen dem neuen Anbau mit Mehrzweckraum, Büro und Foyer wurde überdacht
und die vorhandenen Außenwände der ursprünglichen Kita großzügig geöffnet.








