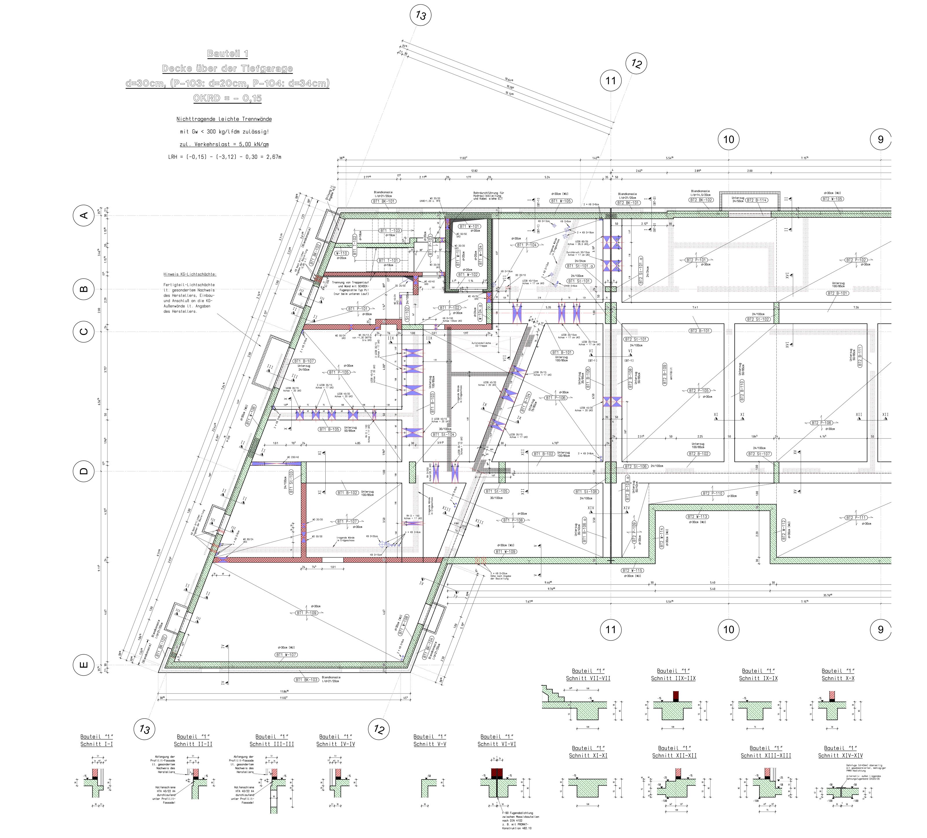
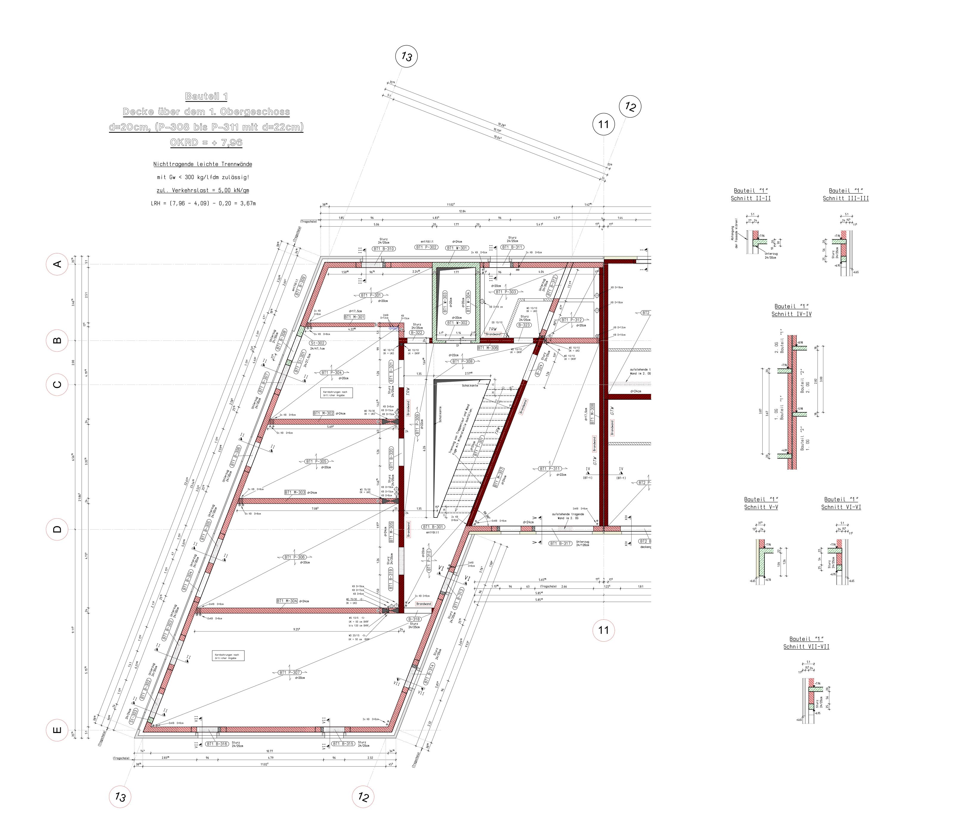
Neubau eines MFH mit 27 WE und Künstlerateliers in Münster
Bauherr:
Wohn + Stadtbau Münster
Bauort:
Schulstraße 43 bis 47in Münster
Baujahr:
2010
Architektur:
Berg Architekten Münster
Kategorie:
Massivbau
Fotos:
Ing.-Büro Glahn
Beschreibung:
Im Zuge der gesamten Neubauung eines innerstädtischen Areals zwischen Schulstraße, Altumstraße und Uppenbergstraße
entstand zwischen der Grevener Straße und der Schulstraße dieses längliche Gebäude mit Wohnen und Künstler-Ateliers.
In der großen Tiefgarage mit Zufahrt auf der nördlichen Gebäudeseite konnten die erforderlichen Stellplätze sowie Lagerflächen für die Künstler untergebracht werden.
Für die bis 2008 in der ehemaligen Eichendorffschule angesiedelte Künstler-Ateliergemeinschaft
wurde der gesamte südliche Gebäudeteil repräsentativ geplant und errichtet.
Zum Schutz vor Außenlärm wurde die betroffenen Fassaden mit einem optimierten Wäredämmverbundsysten und den geeigneten Schallschutzfenstern ausgestattet.








